Trilocale in vendita

Ivrea, Via Arduino - Centro Storico
€ 125.000
3 locali 3 locali
66 Mq 66 Mq
1 bagno 1 bagno

Trilocale in vendita

Ivrea, Via Arduino - Centro Storico

Descrizione annuncio

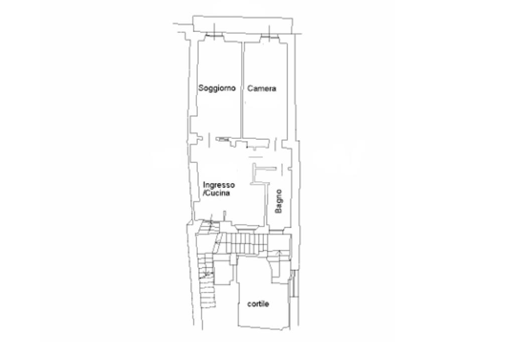
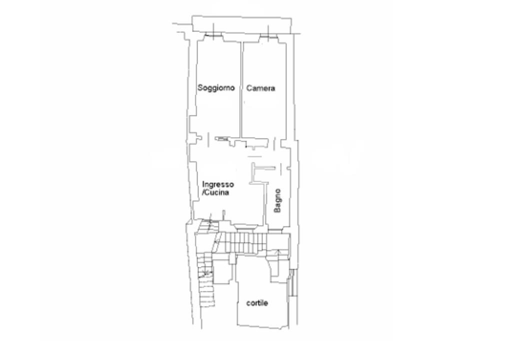
IVREA - Nel suggestivo centro storico di Ivrea, proponiamo in vendita un appartamento totalmente ristrutturato situato al primo piano di una palazzina di cui hanno recentemente rifatto la facciata, valorizzandone l’aspetto esterno.

L’ingresso si apre direttamente su una cucina abitabile, perfetta per pranzi in famiglia o cene con amici, mentre il soggiorno separato gode di una piacevole esposizione con accesso diretto su un balcone che si affaccia sulla via del centro, ideale per godere della vita cittadina.

Il corridoio conduce alla zona notte, composta da una camera da letto matrimoniale e da un bagno finestrato, che garantisce luce naturale e ventilazione.

Completa la proprietà un'ampia cantina, utile per deposito o come spazio aggiuntivo.

Questo appartamento rappresenta un’occasione unica per chi desidera vivere nel cuore storico della città, a pochi passi da negozi, caffè e servizi, con il comfort di spazi ben distribuiti, luminosi e una palazzina esteticamente rinnovata. Viene venduto con il mobilio già presente, rendendolo pronto per essere abitato da subito.

Mostra tutto

Nelle vicinanze

Trasporto pubblico Trasporto pubblico
Ivrea
Ivrea
580 m
Montalto Dora
Montalto Dora
2,9 Km
Ivrea (C.so Re Umberto/l.go Dora I)
Ivrea (C.so Re Umberto/l.go Dora I)
140 m
Ivrea (Piazza Pistoni/porta Aosta)
Ivrea (Piazza Pistoni/porta Aosta)
220 m
Ricariche auto elettriche Ricariche auto elettriche
Duferco Re Umberto
580 m
Conad Ivrea Corso Vercelli | EnelX
2,6 Km
Scuole Scuole
Liceo Classico Statale Carlo Botta
280 m
Scuola Primaria Statale Costantino Nigra
380 m
La Castiglia
420 m
Istituto Tecnico Commerciale e per Geometri Giovanni Cena
530 m
Scuola Primaria Statale Massimo d'Azeglio
710 m
Farmacia Farmacia
Farmacia Fasano
190 m
Farmacia Linda
200 m
farmacia Dora s.n.c.
290 m
Farmacia Stragiotti
560 m
Farmacia Rocchietta
740 m
Ospedali Ospedali
Ospedale Civile Ivrea
90 m
Clinica Eporediese
740 m
Supermercati Supermercati
Lidl
470 m
Carrefour Express
600 m
Bennet
860 m
Conad
1,7 Km
Ekom
2,3 Km
Negozi Negozi
Negozi
120 m
Panetteria Monastero
130 m
Class Collection
150 m
Bogart
170 m
Dream Intimo
190 m
Bar Bar
Belushi
540 m
Enoteca Bar AStor
1,7 Km
Bar Modina
2,2 Km
Bar Smeraldo
2,5 Km
Pasticceria Pitti
2,8 Km
Ristoranti Ristoranti
La Mugnaia
20 m
La Gusteria
80 m
Solativo Vinosteria
140 m
Pizzeria Capri
170 m
Pizzeria - Al faro
180 m
Mostra tutto

Caratteristiche

Rif.:
61202716
Piano:
1 di 3 (Piano basso)
Balconi:
1
Camere da letto:
1
Arredamento:
Completo
Condizionamento:
Assente
Mostra tutto
Prezzo Prezzo
€ 125.000
Rata mutuo Rata mutuo
€ 596 / mese
Spese annue Spese annue
€ 600
Proponi il tuo prezzoProponi il tuo prezzo

Classe Energetica

D
D
D
D
D
D
D
D
D
EP globale non rinnovabile:
79.89 kW h/m² anno
EP globale rinnovabile:
5.23 kW h/m² anno
EP invernale del fabbricato:
EP estiva del fabbricato:
Anno di costruzione:
1890
Riscaldamento:
Autonomo
Tipo impianto:
A radiatori
Tipo alimentazione:
Metano

Ti interessa visionare l'immobile?

Fissa un appuntamento  Fissa un appuntamento

Richiedi informazioni

Clicca su Leggi per aprire l'informativa
* Questi campi sono obbligatori

Calcola il tuo mutuo

Semplice e senza impegno
Anticipo

( % )
Mutuo

( % )

pochi semplici passi

inserisci i tuoi dati
Questionario completato
Grazie per aver richiesto un appuntamento senza impegno con un nostro Consulente del Credito e Assicurativo.

Hai inserito correttamente tutti i dati necessari e a breve riceverai una e-mail con un link da convalidare per inviare i tuoi dati.
Affiliato
Studio Ivrea Due Sas
Via Torino, 112 10015 Ivrea (TO)

Il nostro staff


  • Mattia Blasotta
    Affiliato

  • Claudia Cappozzo
    Responsabile

  • Nicolò Noro
    Affiliato

  • Arianna Quagliotti
    Coordinatrice

  • Teresa Raffa
    Collaboratrice
Via Torino, 112 10015 Ivrea (TO)
Zona: Ivrea-San Grato-San Bernardo
Mostra su mappa
Affiliato
Studio Ivrea Due Sas
Via Torino, 112 10015 Ivrea (TO)

2026 Tecnocasa Franchising S.p.A. - P. IVA 08365160152 - Via Monte Bianco 60/A 20089 Rozzano (MI). Ogni agenzia ha un proprio titolare ed è autonoma. Privacy policy | Policy utilizzo | Cookie policy