Casa di corte in vendita

Pavone Canavese, Via Trento
€ 89.000
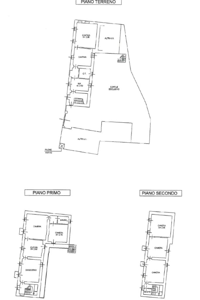
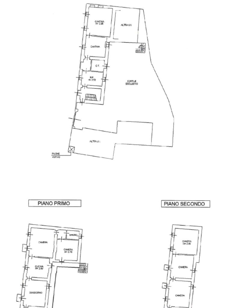
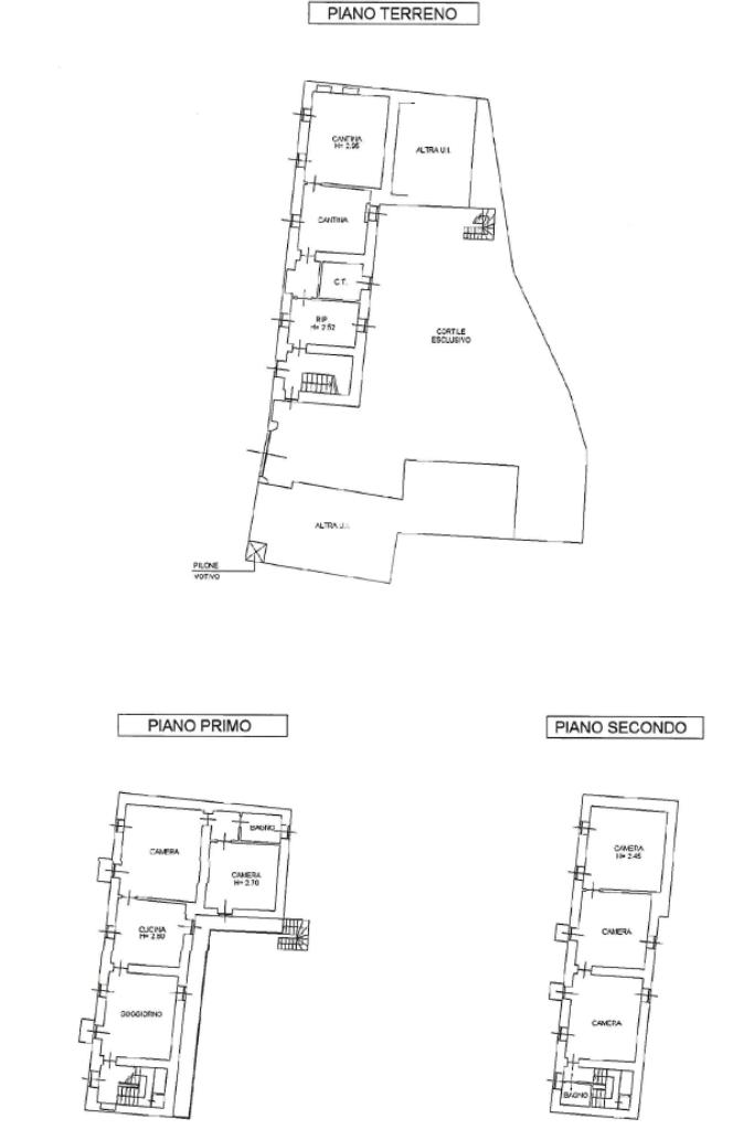
9 locali 9 locali
290 Mq 290 Mq
2 bagni 2 bagni

Casa di corte in vendita

Pavone Canavese, Via Trento

Descrizione annuncio

PAVONE CANAVESE - In una zona tranquilla del paese, perfettamente collegata ai principali servizi, sorge questa casa indipendente che rappresenta un’interessante opportunità per chi cerca un’abitazione da modellare secondo il proprio stile. La proprietà, infatti, si presenta da ristrutturare, offrendo l’occasione di reinventare ogni ambiente e di adattarlo alle proprie esigenze grazie alla presenza di spazi versatili distribuiti su tre piani.

L’immobile si distingue per la sua grande flessibilità: può essere acquistato come un’unica ampia abitazione, ideale per una famiglia che desidera indipendenza e metrature generose, oppure può essere facilmente suddiviso in due o addirittura tre unità abitative, diventando così una soluzione perfetta per chi cerca una bifamiliare o trifamiliare, o per chi desidera un investimento a reddito.

A completare la proprietà, un giardino privato che regala un piacevole spazio all’aperto dove trascorrere momenti di relax e che dispone anche di un’area destinata al parcheggio. Una proposta ideale per chi vuole vivere in un contesto sereno senza rinunciare alla comodità e al potenziale di personalizzazione.

Mostra tutto

Nelle vicinanze

Trasporto pubblico Trasporto pubblico
Ivrea
Ivrea
3,0 Km
Pavone (v. Circonvallazione/v. Nosetta)
Pavone (v. Circonvallazione/v. Nosetta)
320 m
Pavone (v. Circonvallazione 42)
Pavone (v. Circonvallazione 42)
330 m
Scuole Scuole
Scuola Primaria Statale Don Milani
1,2 Km
Scuola Primaria di Samone
1,6 Km
Scuola Media Statale "Leonardo da Vinci"
1,7 Km
Istituto Tecnico Industriale ITIS "Camillo Olivetti"
1,8 Km
Scuola Primaria Statale "San Bernardo"
2,1 Km
Farmacia Farmacia
Farmacia
550 m
Farmacia Comunale 15
1,3 Km
Farmacia Borgo Nuovo
1,8 Km
Farmacia Piovera Dott. Enrico
2,4 Km
Supermercati Supermercati
A&O
1,3 Km
Conad
2,2 Km
Bennet
3,0 Km
Negozi Negozi
Negozi
1,4 Km
Buenos Dias
1,8 Km
Panetteria Pasticceria Pizza DOC
2,3 Km
Forno Le Tre Spighe
2,4 Km
Lucana
2,5 Km
Bar Bar
Enoteca Bar AStor
2,3 Km
Ristoranti Ristoranti
Ristorante Castello di Pavone
380 m
La Ferrere
420 m
La Bella Dormiente
520 m
Ristorante Bacco
1,4 Km
Trattoria Moderna - Il Simposio
1,8 Km
Mostra tutto

Caratteristiche

Rif.:
61147801
Piano:
Su più livelli di 2
Totale piani:
2
Posti auto:
2
Balconi:
5
Camere da letto:
5
Mostra tutto
Prezzo Prezzo
€ 89.000
Rata mutuo Rata mutuo
€ 425 / mese
Spese annue Spese annue
€ 0
Proponi il tuo prezzoProponi il tuo prezzo

Classe Energetica

G
G
G
G
G
G
G
G
G
EP globale non rinnovabile:
444.97 kW h/m² anno
EP globale rinnovabile:
0.00 kW h/m² anno
EP invernale del fabbricato:
EP estiva del fabbricato:
Anno di costruzione:
1960
Riscaldamento:
Autonomo
Tipo impianto:
A radiatori
Tipo alimentazione:
Metano

Ti interessa visionare l'immobile?

Fissa un appuntamento  Fissa un appuntamento

Richiedi informazioni

Clicca su Leggi per aprire l'informativa
* Questi campi sono obbligatori

Calcola il tuo mutuo

Semplice e senza impegno
Anticipo

( % )
Mutuo

( % )

pochi semplici passi

inserisci i tuoi dati
Questionario completato
Grazie per aver richiesto un appuntamento senza impegno con un nostro Consulente del Credito e Assicurativo.

Hai inserito correttamente tutti i dati necessari e a breve riceverai una e-mail con un link da convalidare per inviare i tuoi dati.
Affiliato
Studio Ivrea Due Sas
Via Torino, 112 10015 Ivrea (TO)

Il nostro staff


  • Mattia Blasotta
    Affiliato

  • Claudia Cappozzo
    Responsabile

  • Nicolò Noro
    Affiliato

  • Arianna Quagliotti
    Coordinatrice

  • Teresa Raffa
    Collaboratrice
Via Torino, 112 10015 Ivrea (TO)
Zona: Ivrea-San Grato-San Bernardo
Mostra su mappa
Affiliato
Studio Ivrea Due Sas
Via Torino, 112 10015 Ivrea (TO)

2026 Tecnocasa Franchising S.p.A. - P. IVA 08365160152 - Via Monte Bianco 60/A 20089 Rozzano (MI). Ogni agenzia ha un proprio titolare ed è autonoma. Privacy policy | Policy utilizzo | Cookie policy